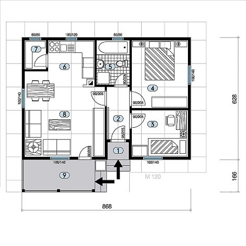
Bruto površina: 63,14 m2Osnova: 8,68 x 7,942 sobe + dnevni boravak
 ProstorijaPovršina u m2
1Ulaz1,00
2Predsoblje3,24
3Dečja soba6,96
4Spavaća soba10,15
5Kupatilo4,14
6Kuhinja5,60
7Ostava1,65
8Dnevna soba15,72
9Terasa6,14
Neto površina: 55,39 m2

Galerija